Veränderungen in der Dorfmitte von Itzenbüttel – warum und was ist da geplant?
Der Bauausschuss wird sich in seiner Sitzung am 27. Januar 2016 erstmals mit neuen Planungen für die Hofstelle Böttcher mitten in Itzenbüttel beschäftigen.
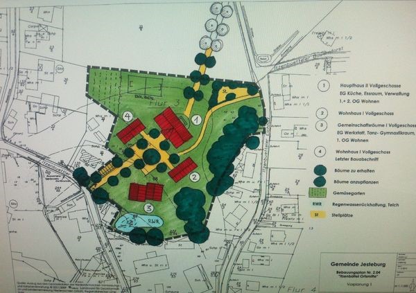
Die eigentliche Hofanlage hat eine Größe von ca. 11.000 qm. Die Gebäude auf der Hofanlage sind teilweise stark sanierungsbedürftig, außerdem ist dieser Hof der letzte in Itzenbüttel, der Tierhaltung noch mitten in Ort betreibt, was seine eigenen Probleme mit sich bringt. Der Landwirt beabsichtigt nun eine Auslagerung des vorhandenen landwirtschaftlichen Betriebes in den Außenbereich auf einer Fläche am Itzenbütteler Brumhof.
Und was wird dann aus der alten Hofstelle?
Nach ersten planerischen Überlegungen wird es notwendig, die vorhandene Bausubstanz abzureißen und eine Neuordnung vorzunehmen. Hier sollen im Stil einer Hofstelle Wohnungen in vier Gebäuden entstehen. Das Haupthaus wird am heutigen Standort des Wohnhauses positioniert. Die Hauptzufahrt soll von der Straße Itzenbütteler Sod aus erfolgen. Eine An- und Abfahrt wird darüber hinaus auch von der Straße Itzenbütteler Eichhoff vorgesehen.
Kurzfristig soll jedoch auf der Hofanlage ein Heim für jugendliche Asylbewerber entstehen. Die Gebäude sollen entsprechend umnutzungsfähig gestaltet werden. Diese Maßnahme erfolgt in enger Absprache und Planung mit/ durch die Betreiber des Forellenhofes (Kinderheim) in Jesteburg und der Jugend- und Heimaufsicht beim Landkreis Harburg.
Wie geht es jetzt weiter?
Das Projekt wird erstmals am 27.01. im Bauausschuss vorgestellt. Die Sitzung ist öffentlich! Sie findet im Sitzungsraum/Seniorenbegegnungsstätte in der alten Schule am Sandbarg 32 statt. Anschließend werden die Fraktionen beraten. Die CDU hat zu diesem Tagesordnungspunkt einen Antrag auf Einberufung einer zusätzlichen Bürger-Informationsveranstaltung für Itzenbüttel gestellt.
Sollte im Laufe der Beratungen dieses Projekt in der geplanten Form Zustimmung im Rat finden, wären städtebauliche Verträge zu schließen, der Flächennutzungsplan der Samtgemeinde sowie der Bebauungsplan der Gemeinde zu ändern. Danach könnte ein Bauantrag gestellt werden, parallel gäbe es Absprachen mit der Jugend- und Heimaufsicht.

Dazu hat unsere CDU jetzt folgenden Antrag gestellt:
Bürger-Informationveranstaltung Itzenbüttel
Antrag zum Bauausschuss am 27.01.2016 Top 8 „Nachnutzung einer landwirtschaftlichen Hofstelle in Itzenbüttel“
ANTRAG
Einberufung einer Informationsveranstaltung für Itzenbütteler Bürger.
BEGRÜNDUNG
Auch wenn in der öffentlichen Bauausschusssitzung die Planung vorgestellt werden soll und die Beratungen sowie die Bürgerbeteiligung damit erst ihren Anfang nehmen, halten wir in diesem besonderen Fall eine sehr sorgfältige und ausführliche Information der Bewohner „im Dorf“ für geboten. Da es sich nicht von Anbeginn um den reinen Bau von Wohnungen handelt, sondern eine Zwischennutzung als Heim für jugendliche Asylbewerber geplant ist, muss das Verständnis und die Akzeptanz der Dorfgemeinschaft in Itzenbüttel von Anbeginn der Planung Ziel sein und erfordert eine über das Normalmaß hinausgehende Beteiligung.

